Contact David F. Ryder III
Schedule A Showing
Request more information
- Home
- Property Search
- Search results
- 217 Bangsberg Road Se, PORT CHARLOTTE, FL 33952
- MLS#: N6142823 ( Residential )
- Street Address: 217 Bangsberg Road Se
- Viewed: 5
- Price: $1,200,000
- Price sqft: $322
- Waterfront: Yes
- Wateraccess: Yes
- Waterfront Type: Canal - Saltwater
- Year Built: 2006
- Bldg sqft: 3721
- Bedrooms: 3
- Total Baths: 4
- Full Baths: 2
- 1/2 Baths: 2
- Garage / Parking Spaces: 1
- Days On Market: 5
- Additional Information
- Geolocation: 26.9604 / -82.0888
- County: CHARLOTTE
- City: PORT CHARLOTTE
- Zipcode: 33952
- Subdivision: Port Charlotte Sec 040
- Elementary School: Peace River
- Middle School: SKY Academy Englewood
- High School: Lemon Bay
- Provided by: RE/MAX PALM REALTY OF VENICE
- Contact: Regina Melman
- 941-451-2025

- DMCA Notice
-
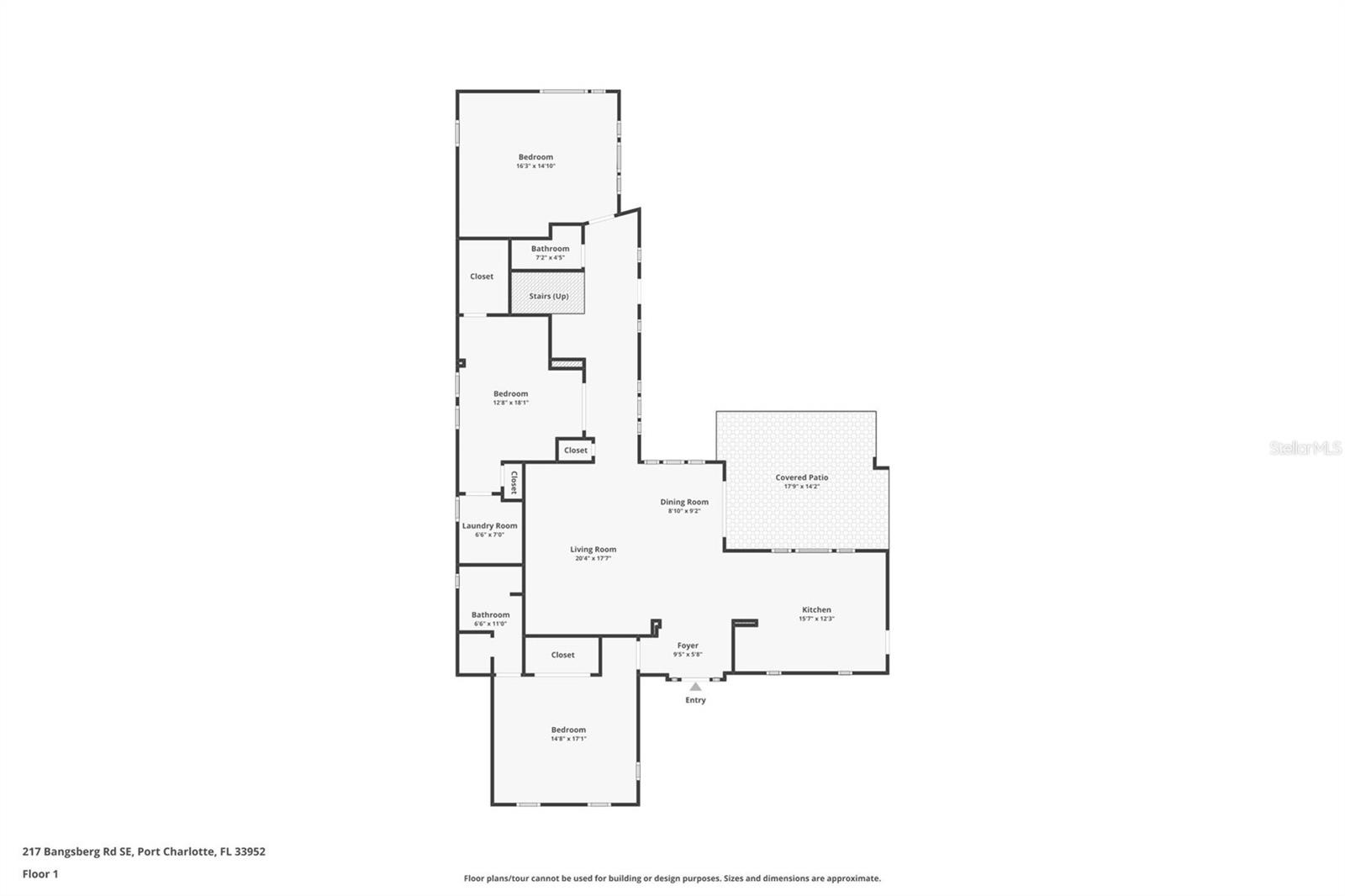
DescriptionLooking for your private oasis? Look no further!PRIVATE POOL HOME!TURNKEY!GREAT ELEVATION (see seller disclosure). Exceptional attention to detail is found throughout this rare, one of a kind custom sailboat waterfront home, where casual elegance welcomes you from the moment you enter. Boasting 100 feet of waterfront with direct access to Charlotte Harbor and the Gulf of Mexico, this property is a true paradise for boating and fishing enthusiasts. Surrounded by lush tropical landscaping, enjoy your private open air pool and deck, offering the ultimate Florida waterfront lifestyle. This custom two story home features water views from nearly every room and includes 3 bedrooms, 2 full baths, and 1 half bath. The spacious great room flows into a well appointed kitchen with abundant cabinetry, coffered ceiling, and top of the line stainless steel appliances, including a gas range. Additional features include a study/den and a dedicated laundry room. The private owners suite offers a balcony overlooking the water and pool, perfect for enjoying sunrise views. The en suite bath includes a soaking tub with tranquil waterfront views. Designed for indoor outdoor living, the covered patio off the great room leads to a 17.5 x 32 heated pool with a depth of nearly 9 feet and a shallow bench area for relaxation. There is also an additional covered patio space adjacent to the pool and a detached 1+ car garage with a half bath. Boating features include a concrete seawall, boat pad, and 5,000 lb davits. Built in 2006 with solid masonry construction, this home includes filled block construction, PGT hurricane impact windows, extra interior wall insulation, zoned A/C systems, and ample storage throughout. Conveniently located near the Port Charlotte Beach Complex, public boat ramp, tennis, golf, pickleball, shopping, dining, and downtown Punta Gorda, as well as North Port and the Punta Gorda Airport. Public water and public sewer. Schedule your private showing today and experience the best of Southwest Florida waterfront living.
All
Similar
Property Features
Waterfront Description
- Canal - Saltwater
Appliances
- Dishwasher
- Dryer
- Range
- Range Hood
- Refrigerator
- Washer
Home Owners Association Fee
- 0.00
Carport Spaces
- 0.00
Close Date
- 0000-00-00
Cooling
- Central Air
Country
- US
Covered Spaces
- 0.00
Exterior Features
- Balcony
- French Doors
- Lighting
- Sidewalk
- Storage
Flooring
- Bamboo
- Tile
Furnished
- Turnkey
Garage Spaces
- 1.00
Heating
- Central
High School
- Lemon Bay High
Insurance Expense
- 0.00
Interior Features
- Built-in Features
- Ceiling Fans(s)
- Coffered Ceiling(s)
- Eat-in Kitchen
- L Dining
- PrimaryBedroom Upstairs
- Solid Surface Counters
- Walk-In Closet(s)
Legal Description
- PCH 040 2091 0517 PORT CHARLOTTE SEC40 REP BLK2091 LT 517 274/78 586/1279 660/2166 679/90 949/1504 DC1093/1806 1093/1808 1274/693 1559/1940
Levels
- Two
Living Area
- 2800.00
Lot Features
- In County
- Paved
Middle School
- SKY Academy Englewood
Area Major
- 33952 - Port Charlotte
Net Operating Income
- 0.00
Occupant Type
- Owner
Open Parking Spaces
- 0.00
Other Expense
- 0.00
Parcel Number
- 402226351002
Pets Allowed
- Yes
Pool Features
- Gunite
- In Ground
Property Type
- Residential
Roof
- Shingle
School Elementary
- Peace River Elementary
Sewer
- Public Sewer
Style
- Custom
Tax Year
- 2025
Township
- 40S
Utilities
- BB/HS Internet Available
- Cable Available
- Electricity Connected
- Phone Available
- Propane
- Public
- Sewer Connected
- Water Connected
View
- Pool
- Water
Virtual Tour Url
- https://www.zillow.com/view-imx/403ca81f-8dd7-41c7-b0d6-83faf49d95e6?setAttribution=mls&wl=true&initialViewType=pano&utm_source=dashboard
Water Source
- Public
Year Built
- 2006
Zoning Code
- RSF3.5
Listing Data ©2026 Greater Fort Lauderdale REALTORS®
Listings provided courtesy of The Hernando County Association of Realtors MLS.
Listing Data ©2026 REALTOR® Association of Citrus County
Listing Data ©2026 Royal Palm Coast Realtor® Association
The information provided by this website is for the personal, non-commercial use of consumers and may not be used for any purpose other than to identify prospective properties consumers may be interested in purchasing.Display of MLS data is usually deemed reliable but is NOT guaranteed accurate.
Datafeed Last updated on April 13, 2026 @ 12:00 am
©2006-2026 brokerIDXsites.com - https://brokerIDXsites.com
































































