Contact David F. Ryder III
Schedule A Showing
Request more information
- Home
- Property Search
- Search results
- 14261 128th Street, OCKLAWAHA, FL 32179
- MLS#: OM722668 ( Residential )
- Street Address: 14261 128th Street
- Viewed: 8
- Price: $1,650,000
- Price sqft: $192
- Waterfront: Yes
- Wateraccess: Yes
- Waterfront Type: Lake Front
- Year Built: 1998
- Bldg sqft: 8588
- Bedrooms: 5
- Total Baths: 5
- Full Baths: 3
- 1/2 Baths: 2
- Garage / Parking Spaces: 2
- Days On Market: 1
- Additional Information
- Geolocation: 29.0365 / -81.9157
- County: MARION
- City: OCKLAWAHA
- Zipcode: 32179
- Subdivision: Sanctuary
- Elementary School: Stanton
- Middle School: Lake Weir
- High School: Lake Weir
- Provided by: PREMIER SOTHEBY'S INTERNATIONAL REALTY
- Contact: Angela Rose
- 352-509-6455

- DMCA Notice
-
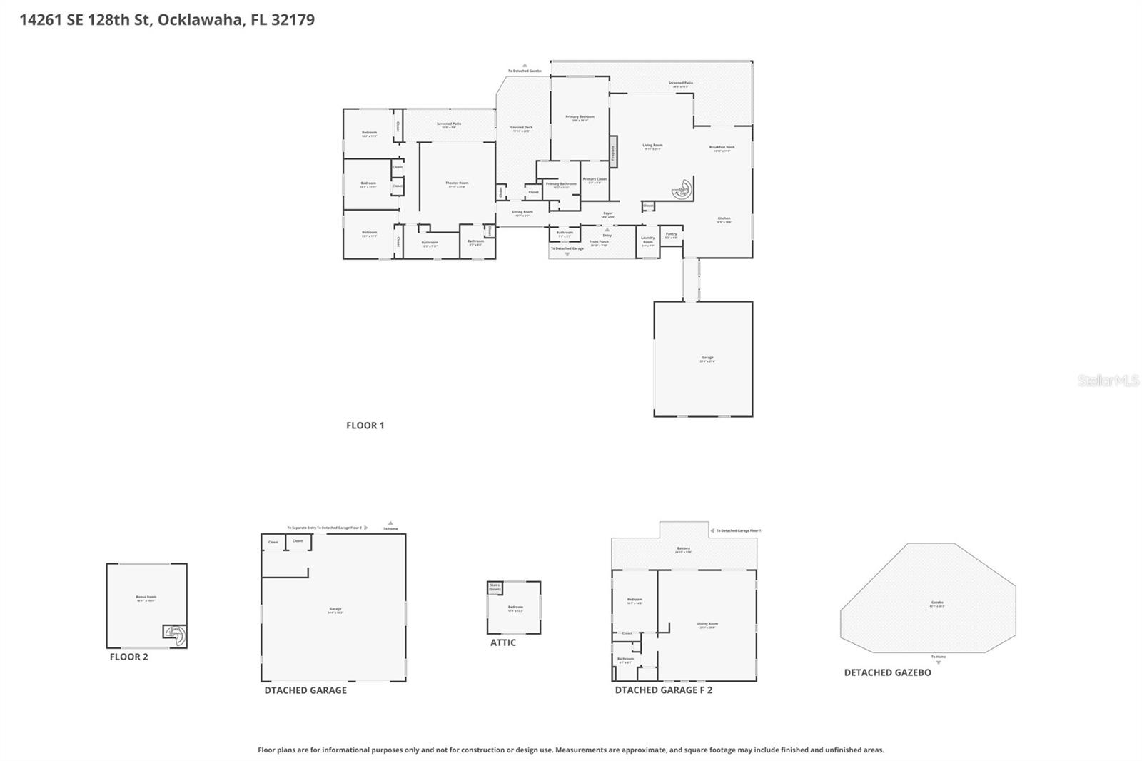
DescriptionPositioned along the shoreline of Lake Weir, this exceptional lakefront residence located on 4.54 acres offers direct water access, private beach frontage, and a seamless blend of indoor and outdoor living. The open concept main floor features pine wood flooring, crown molding, and a gas fireplace with a classic brick surround. Integrated audio flows throughout the main living areas, primary suite, and lanai, while panoramic eight foot glass doors installed in 2025 provide stunning water views and effortless transition to the screened outdoor entertaining spaces. The oversized dining room is perfectly oriented towards the lake, providing direct access to the exterior living space for effortless hosting. Meticulously planned for efficiency and grand scale entertaining, the chef inspired kitchen features a Samsung Smart stainless steel suite, including a double wall oven and a center island with an induction cooktop. Granite countertops and a generous breakfast bar accommodate seating for seven, while a walk in pantry with custom shelving and a dedicated eight foot custom coffee bar provide extensive storage and preparation space. For added convenience, the home features a custom curated laundry suite equipped with double Samsung Smart Champagne Edition washers and dryers, complemented by custom cabinetry and a functional wet sink. The home continues to impress with a spiral staircase leading to a spacious game room and bunkhouse equipped with built in sleeping for six and a billiards area. For movie enthusiasts, a first floor dedicated home theater offers multi level seating for six, in wall surround sound, and a wet bar, with glass doors that overlook a second lanai and the lake. The primary suite serves as a private retreat featuring Kohler fixtures and an oversized, fully tiled shower, while a separate guest wing ensures privacy with three additional bedrooms and a full bath. Outside, the Florida lifestyle is fully realized with a screened lanai and a large Tiki hut with composite flooring set upon a private sugar sand beach. The property also includes a private dock and dock house equipped with two boat lifts, supporting a full range of boating and water sports on Lake Weir. Completing this estate is a detached guest house providing a full one bedroom, one bathroom layout with a sleeping loft and kitchen, all situated above a massive six car garage. Additional infrastructure includes a 2.5 car main garage with covered access to the residence and an expansive concrete parking area featuring multiple recreational RV utility hookups, ensuring ample space for guests and hobbies alike.
All
Similar
Property Features
Waterfront Description
- Lake Front
Appliances
- Built-In Oven
- Cooktop
- Dishwasher
- Disposal
- Dryer
- Exhaust Fan
- Range
- Range Hood
- Refrigerator
- Trash Compactor
- Washer
Home Owners Association Fee
- 1800.00
Association Name
- The Sanctuary/Mark White
Association Phone
- 941-960-5000
Carport Spaces
- 0.00
Close Date
- 0000-00-00
Cooling
- Central Air
Country
- US
Covered Spaces
- 0.00
Exterior Features
- Outdoor Shower
- Rain Gutters
- Sliding Doors
Flooring
- Carpet
- Ceramic Tile
- Wood
Furnished
- Unfurnished
Garage Spaces
- 2.00
Heating
- Central
High School
- Lake Weir High School
Insurance Expense
- 0.00
Interior Features
- Built-in Features
- Ceiling Fans(s)
- Crown Molding
- Eat-in Kitchen
- Open Floorplan
- Split Bedroom
- Walk-In Closet(s)
- Wet Bar
- Window Treatments
Legal Description
- SEC 04 TWP 17 RGE 24 PLAT BOOK Y PAGE 093 THE SANCTUARY LOT 1 & THE FOLLOWING DESCRIBED: THE SELY 1/2 OF THAT PORTION OF SE 144TH AVE (BANANA AVE) LYING S OF THE FORMER DEABOARD COST LINE RR (FORMERLY ATLANTIC COAST LINE RR AND AS FLORIDA SOUTHERN RA ILWAY) BEING DESCRIBED AS: COM AT THE NLY COR OF THE SANCTUARY Y-93 TH S 33-22-28 W ALONG THE NWLY LINE OF SAID LOT 1 (ALSO BEING THE SELY ROW LINE OF SE 144TH AVE (BANANA AVE) (60 FT WIDE RD) 1364.75 FT TO THE INTERSECTION OF SAID NWLY LINE OF LOT 1 AND THE SLY ROW LINE OF SAID FORMER RR SAID POINT BEING THE POB TH N 21-56-44 W ALONG THE SLY ROW LINE OF SAID RR 36.55 FT TO THE CENTERLINE OF SAID SE 144TH AVE S S 33-22-28 W ALONG SAID CENTERLINE (PARALLEL TO AND 30 FT FROM SAID NWLY LINE OF LOT
Levels
- Two
Living Area
- 4776.00
Middle School
- Lake Weir Middle School
Area Major
- 32179 - Ocklawaha
Net Operating Income
- 0.00
Occupant Type
- Owner
Open Parking Spaces
- 0.00
Other Expense
- 0.00
Parcel Number
- 49129-001-00
Pets Allowed
- Yes
Property Type
- Residential
Roof
- Metal
- Other
School Elementary
- Stanton-Weirsdale Elem. School
Sewer
- Septic Tank
Tax Year
- 2025
Township
- 17S
Utilities
- BB/HS Internet Available
- Cable Connected
- Electricity Connected
- Sewer Connected
- Underground Utilities
- Water Connected
Virtual Tour Url
- https://www.zillow.com/view-imx/764cf56b-5e27-4c76-9895-71dec9378f97?setAttribution=mls&wl=true&initialViewType=pano&utm_source=dashboard
Water Source
- Public
Year Built
- 1998
Zoning Code
- R1
Listing Data ©2026 Greater Fort Lauderdale REALTORS®
Listings provided courtesy of The Hernando County Association of Realtors MLS.
Listing Data ©2026 REALTOR® Association of Citrus County
Listing Data ©2026 Royal Palm Coast Realtor® Association
The information provided by this website is for the personal, non-commercial use of consumers and may not be used for any purpose other than to identify prospective properties consumers may be interested in purchasing.Display of MLS data is usually deemed reliable but is NOT guaranteed accurate.
Datafeed Last updated on April 15, 2026 @ 12:00 am
©2006-2026 brokerIDXsites.com - https://brokerIDXsites.com





























































































