Contact David F. Ryder III
Schedule A Showing
Request more information
- Home
- Property Search
- Search results
- 11718 Stonewood Gate Drive, RIVERVIEW, FL 33579
- MLS#: W7884299 ( Residential )
- Street Address: 11718 Stonewood Gate Drive
- Viewed: 6
- Price: $565,000
- Price sqft: $138
- Waterfront: No
- Year Built: 2005
- Bldg sqft: 4087
- Bedrooms: 4
- Total Baths: 3
- Full Baths: 2
- 1/2 Baths: 1
- Garage / Parking Spaces: 2
- Days On Market: 8
- Additional Information
- Geolocation: 27.8032 / -82.3102
- County: HILLSBOROUGH
- City: RIVERVIEW
- Zipcode: 33579
- Subdivision: Summerfield Village 1 Tr 21
- Provided by: EXIT SUCCESS REALTY
- Contact: Nikita Aultman
- 352-686-2222

- DMCA Notice
-
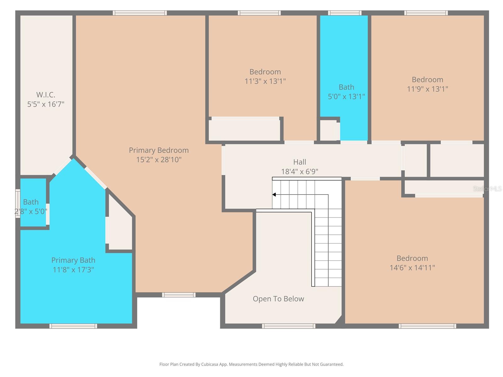
DescriptionWelcome to this exceptionally upgraded and meticulously maintained residence in the highly sought after summerfield community of riverview. Featuring a new roof (2021), dual hvac systems (2023), (nest), whole house generator (2020), water softener system (2026), full yard irrigation system, and rain gutters with two rain barrels, this home offers immediate comfort, efficiency, and peace of mind. Offering over 3,200 square feet of well appointed living space, this 4 bedroom, 2. 5 bath home is ideally positioned on an expansive 1/3 acre lot (approx. 14,500+ sq ft) with no rear neighbors, providing private and serene conservation views. Also, low hoa ($47. 25 monthly), and no cdd. As additional information, note that during current ownership (2016 to present) the property has not experienced any flooding. Upon entry, youre welcomed by a light filled, open concept floor plan, with 9 1/2 foot ceilings, with luxury vinyl plank flooring (2019), fresh interior paint(2020), and updated ceiling fixtures and modern hardware throughout. A fresh exterior paint (2026) further enhances curb appeal and long term durability. The gourmet kitchen serves as the heart of the home, thoughtfully designed with quartz countertops (2022), new lg appliances (2016), two extra large pantries, and abundant cabinetry. Distinctive architectural featuresincluding a kitchen sink wall mosaic, decorative ceiling beams, and a custom water featureadd character while maintaining a seamless flow into the main living and entertaining areas. Outdoor living is equally impressive with a covered and paved patio (2021)ideal for relaxing or hosting gatherings. The expansive backyard also features a custom built 10' x 14' shed with hurricane tie downs and offers ample space to add a pool or design a private outdoor retreat. The fully fenced yard (2020) includes two access gates, one providing an extra wide 810 ft opening, offering added convenience for equipment access, storage, or future pool installation. Privacy treated, reinforced sliding glass doors and rear facing windows further enhance security and comfort. Additional highlights include multiple walk in closets, generous storage throughout, a security system with exterior cameras, updated powder room vanity (2024), pull down attic access above the garage. Residents enjoy access to an impressive community center featuring a beautiful golf course, clubhouse, indoor basketball, tennis and pickleball courts, fitness center, multiple pools, dog park, playground, and athletic fields. Conveniently located in a prime location near shopping, grocery stores, dining, and entertainment, this home also offers easy access to i 75, multiple hospitals, floridas renowned gulf coast beaches, and world famous theme parksmaking it an exceptional choice for both daily living and weekend getaways.
All
Similar
Property Features
Appliances
- Dishwasher
- Dryer
- Microwave
- Range
- Refrigerator
- Washer
Home Owners Association Fee
- 141.75
Association Name
- Summerfield Master Community Association
- INC
Association Phone
- 8136712005
Carport Spaces
- 0.00
Close Date
- 0000-00-00
Cooling
- Central Air
Country
- US
Covered Spaces
- 0.00
Exterior Features
- Rain Barrel/Cistern(s)
- Rain Gutters
- Sidewalk
Flooring
- Carpet
- Luxury Vinyl
Furnished
- Unfurnished
Garage Spaces
- 2.00
Heating
- Central
Insurance Expense
- 0.00
Interior Features
- Built-in Features
- Ceiling Fans(s)
- Eat-in Kitchen
- High Ceilings
- PrimaryBedroom Upstairs
- Solid Surface Counters
- Thermostat
- Walk-In Closet(s)
Legal Description
- SUMMERFIELD VILLAGE 1 TRACT 21 UNIT 1 PHASE 5 LOT 7 BLOCK 1
Levels
- Two
Living Area
- 3282.00
Area Major
- 33579 - Riverview
Net Operating Income
- 0.00
Occupant Type
- Owner
Open Parking Spaces
- 0.00
Other Expense
- 0.00
Parcel Number
- U-09-31-20-748-000001-00007.0
Pets Allowed
- Yes
Property Type
- Residential
Roof
- Shingle
Sewer
- Public Sewer
Tax Year
- 2025
Township
- 31
Utilities
- Electricity Connected
- Underground Utilities
- Water Connected
Virtual Tour Url
- https://www.propertypanorama.com/instaview/stellar/W7884299
Water Source
- Public
Year Built
- 2005
Zoning Code
- PD
Listing Data ©2026 Greater Fort Lauderdale REALTORS®
Listings provided courtesy of The Hernando County Association of Realtors MLS.
Listing Data ©2026 REALTOR® Association of Citrus County
Listing Data ©2026 Royal Palm Coast Realtor® Association
The information provided by this website is for the personal, non-commercial use of consumers and may not be used for any purpose other than to identify prospective properties consumers may be interested in purchasing.Display of MLS data is usually deemed reliable but is NOT guaranteed accurate.
Datafeed Last updated on April 8, 2026 @ 12:00 am
©2006-2026 brokerIDXsites.com - https://brokerIDXsites.com

















































































