Contact David F. Ryder III
Schedule A Showing
Request more information
- Home
- Property Search
- Search results
- 3066 Stephanie Drive, Spring Hill, FL 34608
- MLS#: TB8480349 ( Residential )
- Street Address: 3066 Stephanie Drive
- Viewed: 4
- Price: $430,000
- Price sqft: $230
- Waterfront: No
- Year Built: 2002
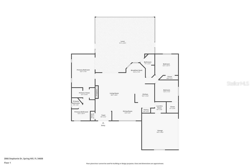
- Bldg sqft: 1872
- Bedrooms: 3
- Total Baths: 2
- Full Baths: 2
- Garage / Parking Spaces: 2
- Days On Market: 1
- Additional Information
- Geolocation: 28.477 / -82.5556
- County: HERNANDO
- City: Spring Hill
- Zipcode: 34608
- Subdivision: Oakridge Estates
- Provided by: LPT REALTY, LLC
- Contact: Maricarmen Perez
- 877-366-2213

- DMCA Notice
-
DescriptionOne or more photo(s) has been virtually staged. Tucked away on a quiet cul de sac, this 3 bedroom, 2 bathroom home sits on a fully fenced spacious acre lot with no rear neighbors and offers privacy, space, and Southern charm. The open layout flows effortlessly from the living room and kitchen to the screened pool area, creating seamless indoor to outdoor living. Large sliding doors bring in natural light and showcase peaceful backyard views. Enjoy the fully enclosed pool, covered patio, brick smoker, and fire pit, perfect for entertaining. The expansive fenced yard provides plenty of room for a boat, trailer, or outdoor equipment. Recent updates include a new roof 2025, new pool screen 2025, new septic irrigation system, and fresh exterior paint. Features include side entry 2 car garage, Extended driveway, vaulted ceilings, and private neighborhood with sidewalks A rare combination of land, privacy, and Florida lifestyle living.
All
Similar
Property Features
Appliances
- Bar Fridge
- Convection Oven
- Dishwasher
- Disposal
- Dryer
- Exhaust Fan
- Microwave
- Range
- Refrigerator
- Touchless Faucet
- Washer
- Water Filtration System
Home Owners Association Fee
- 140.00
Association Name
- Lisa
Association Phone
- 3529423551
Carport Spaces
- 0.00
Close Date
- 0000-00-00
Cooling
- Central Air
Country
- US
Covered Spaces
- 0.00
Exterior Features
- Awning(s)
- Dog Run
- Fire Pit
- French Doors
- Garden
- Private Yard
- Rain Gutters
- Sidewalk
- Sliding Doors
Flooring
- Carpet
- Tile
Furnished
- Unfurnished
Garage Spaces
- 2.00
Heating
- Central
Insurance Expense
- 0.00
Interior Features
- Built-in Features
- Ceiling Fans(s)
- Eat-in Kitchen
- High Ceilings
- Kitchen/Family Room Combo
- Living Room/Dining Room Combo
- Open Floorplan
- Primary Bedroom Main Floor
- Solid Wood Cabinets
- Thermostat
- Vaulted Ceiling(s)
- Walk-In Closet(s)
Legal Description
- OAKRIDGE ESTATES UNIT 3 LOT 349
Levels
- One
Living Area
- 1872.00
Area Major
- 34608 - Spring Hill/Brooksville
Net Operating Income
- 0.00
Occupant Type
- Owner
Open Parking Spaces
- 0.00
Other Expense
- 0.00
Parcel Number
- R24-223-17-2818-0000-3490
Pets Allowed
- Yes
Pool Features
- Child Safety Fence
- Deck
- Gunite
- In Ground
- Screen Enclosure
- Tile
Property Type
- Residential
Roof
- Shingle
Sewer
- Septic Tank
Tax Year
- 2025
Township
- 23S
Utilities
- Cable Available
- Electricity Available
- Electricity Connected
- Private
- Water Available
- Water Connected
Virtual Tour Url
- https://www.propertypanorama.com/instaview/stellar/TB8480349
Water Source
- Private
Year Built
- 2002
Zoning Code
- R1
Listing Data ©2026 Greater Fort Lauderdale REALTORS®
Listings provided courtesy of The Hernando County Association of Realtors MLS.
Listing Data ©2026 REALTOR® Association of Citrus County
Listing Data ©2026 Royal Palm Coast Realtor® Association
The information provided by this website is for the personal, non-commercial use of consumers and may not be used for any purpose other than to identify prospective properties consumers may be interested in purchasing.Display of MLS data is usually deemed reliable but is NOT guaranteed accurate.
Datafeed Last updated on February 28, 2026 @ 12:00 am
©2006-2026 brokerIDXsites.com - https://brokerIDXsites.com

















































